Description
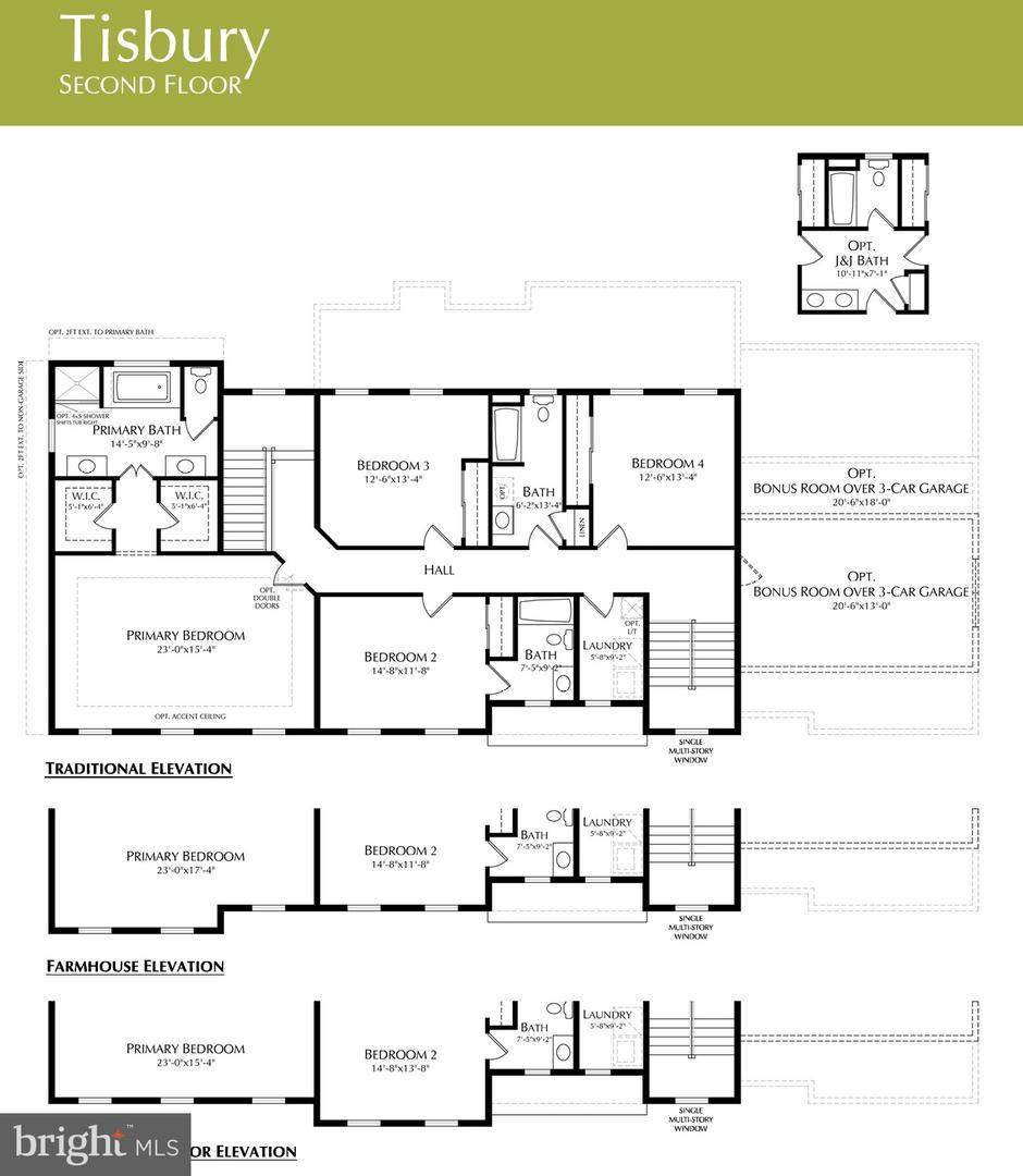
NEW CONSTRUCTION!! PREMIUM LAND, PREMIUM LOCATION, AND A PREMIER BUILDER!! Build your home in the most sought area in CHADDS FORD on 4.76 beautiful secluded acres, with a gentle slope, meandering creek, and located on a quiet street with a cul-de-sac. SELLER IS WILLING TO NEGOTIATE " DONT HESITATE TO MAKE AN OFFER. The stately Tisbury model offers everything needed for gracious living. The open design features an elegant foyer, a living room with an optional solarium, a formal dining room with an optional butlers pantry, and a study. The gourmet kitchen, complete with a pantry and breakfast room, leads into a spacious family room. The Tisbury includes a convenient second entry door into the mudroom, with rear stairs leading to the second floor. The large master suite boasts two walk-in closets and a deluxe master bath with a soaking tub. Additionally, there is a well-situated second-floor laundry room located near the rear stairs. For more than 30 years, family-owned and operated Rotell(e) Development Company has been Pennsylvania's premier home builder and environmentally responsible land developer. Headquartered in South Coventry, we pride ourselves in our workmanship and stand behind every detail of each home we build. HOUSE IS TO BE BUILT. Come to our Studio to take a look at all of the various house plans we have available. Our plans range from ranches to cape cods to two-story homes! We also offer a variety of options to make your home the dream you imagine! Call today and speak to Lauren Frech, one of our Home Experts at Studio(e)! *Please Note: Pictures show options not included in the listed sales price or as a standard. Listing reflects price of the Tisbury in the version of (e++) series being advertised. House Square Footage: 3,908. The local attractions are outstanding - Revolutionary War at the Brandywine Battlefield, Chadds Ford Winery, Brandywine River Museum of Art, and the iconic Longwood Gardens. Your home is a short commute to Philadelphia, Wilmington, Exton, King of Prussia, Lancaster, the PA Turnpike, and within 2 hours to New York City, and Washington DC. Your home is conveniently located from schools, shopping, restaurants, and entertainment.
-
6BEDS
-
4.76ACRES
-
3BATHS
-
11/2 BATHS
-
3,908SQFT
-
$399$/SQFT
Description
NEW CONSTRUCTION!! PREMIUM LAND, PREMIUM LOCATION, AND A PREMIER BUILDER!! Build your home in the most sought area in CHADDS FORD on 4.76 beautiful secluded acres, with a gentle slope, meandering creek, and located on a quiet street with a cul-de-sac. SELLER IS WILLING TO NEGOTIATE " DONT HESITATE TO MAKE AN OFFER. The stately Tisbury model offers everything needed for gracious living. The open design features an elegant foyer, a living room with an optional solarium, a formal dining room with an optional butlers pantry, and a study. The gourmet kitchen, complete with a pantry and breakfast room, leads into a spacious family room. The Tisbury includes a convenient second entry door into the mudroom, with rear stairs leading to the second floor. The large master suite boasts two walk-in closets and a deluxe master bath with a soaking tub. Additionally, there is a well-situated second-floor laundry room located near the rear stairs. For more than 30 years, family-owned and operated Rotell(e) Development Company has been Pennsylvania's premier home builder and environmentally responsible land developer. Headquartered in South Coventry, we pride ourselves in our workmanship and stand behind every detail of each home we build. HOUSE IS TO BE BUILT. Come to our Studio to take a look at all of the various house plans we have available. Our plans range from ranches to cape cods to two-story homes! We also offer a variety of options to make your home the dream you imagine! Call today and speak to Lauren Frech, one of our Home Experts at Studio(e)! *Please Note: Pictures show options not included in the listed sales price or as a standard. Listing reflects price of the Tisbury in the version of (e++) series being advertised. House Square Footage: 3,908. The local attractions are outstanding - Revolutionary War at the Brandywine Battlefield, Chadds Ford Winery, Brandywine River Museum of Art, and the iconic Longwood Gardens. Your home is a short commute to Philadelphia, Wilmington, Exton, King of Prussia, Lancaster, the PA Turnpike, and within 2 hours to New York City, and Washington DC. Your home is conveniently located from schools, shopping, restaurants, and entertainment.
Related Properties
©2025 Bright MLS, All Rights Reserved. IDX information is provided exclusively for consumers' personal, non-commercial use and may not be used for any purpose other than to identify prospective properties consumers may be interested in purchasing. Some properties which appear for sale may no longer be available because they are for instance, under contract, sold, or are no longer being offered for sale. Information is deemed reliable but is not guaranteed accurate by the MLS or Nesbitt Realty. Some real estate firms do not participate in IDX and their listings do not appear on this website. Some properties listed with participating firms do not appear on this website at the request of the seller. Data last updated: 2025-12-15T20:52:08.68.
